Leave a Message

Thank you for your message. We will be in touch with you shortly.

3 Scotty Drive

$320,000
3 Scotty Drive, Portsmouth, RI 02871
3 Scotty Drive

3 Scotty Drive

$320,000

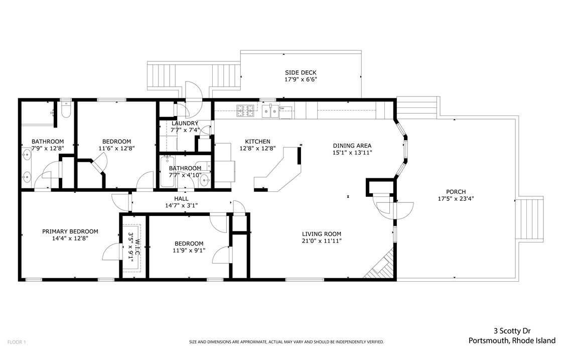
Move In Ready: Check out this impressive and large manufactured home 56 x 28, three bedrooms and two bathrooms with 18 x 24 composited deck with vinyl railing in excellent condition. Many upgrades include paver driveway, new roof with gutters, new hot water tank and new fence. Open concept encompasses the living room with stoned gas fireplace, eat-in-kitchen with room for five bar stools at the breakfast bar, with beautiful detailed windows and new wall to wall cabinetry with tile backsplash in the dining area. Dedicated laundry room. There are ample closets with shelving for storage. The primary bedroom has walk-in closet and en suite bathroom. Propane heat for home, fireplace and stove. Home also has central air conditioning. There is also a 10 x 12 shed with electric. The home is wired for a generator with 200-amp service and 50-amp service outside out front. Lease land rent includes professional management service, water, sewer, paved streets, fully lighted streets, trash and recycle pickup and snow removal. All complete with landscaped lot. Pet friendly. All applicants must obtain park approval for residency prior to closing.

Features & Amenities

Interior

Total Bedrooms 3
Total Bathrooms 2
Full Bathrooms 2
Flooring Carpet, Laminate
Fireplace Insert, Gas, Stone
Appliances Dryer, Dishwasher, Exhaust Fan, Electric Water Heater, Microwave, Oven, Range, Refrigerator, Washer
Other Interior Features Stall Shower, Tub Shower

Exterior

Stories 1
Water Source Public
Parking No Garage
Heat type Central, Forced Air, Propane
Air Conditioning Central Air
Sewer Public Sewer
Substructure Concrete Perimeter
Disability Features Accessibility Features, Accessible Full Bath, Low Pile Carpet, Accessible Doors, Accessible Hallway(s)
Other Exterior Features Deck, Porch, Patio, TV Antenna

Area & Lot

Status Sold
LIVING SPACE 1,574 Sq.Ft.
TOTAL AREA 1,574 Sq.Ft.
MLS® ID 1390175
Type Residential
Year Built 2014
Architecture Styles Manufactured Home

Financial

SALES PRICE $320,000
REAL ESTATE TAXES $2,640/yr
HOA Fees $600/mo
View Virtual Tour

Work With Us

The Newport Group, as part of the Coldwell Banker® Previews International can help you find your dream property anywhere in the WORLD. Contact them today!

CONTACT US